Wspinacze dla Zakrzówka
Zachęcamy do poparcia walki organizacji Zielony Zakrzówek o ochronę krakowskiego Zakrzówka przed zabudowaniem blokowiskiem.
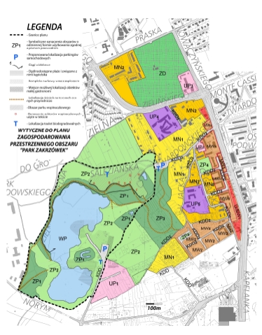
Pomóc w ochronie Zakrzówka można składając w Biurze Planowania Przestrzennego Urzędu Miasta Krakowa, w terminie do 31 marca, wnioski do dwóch nowych planów zagospodarowania przestrzennego dla obszaru Zakrzówka. W przypadku wysyłania wniosków pocztą decyduje data znaczka pocztowego! Dokumenty te zostały przygotowane przez działaczy Zielonego Zakrzówka i co dla nas ważne zabezpieczają uprawianie wspinaczki na terenie którego dotyczą. Można je pobrać i wydrukować ze strony zielony.org.pl - tam też znajdziecie instrukcje co z nimi zrobić.
	
Zarząd Fundacji WSPINKA popiera rozwiązania zawarte w powyższych wnioskach, gdyż ich wprowadzenie w życie umożliwiłoby uprawianie wspinaczki na terenie Zakrzówka w otoczeniu przyrody i w oddaleniu od wielkomiejskich blokowisk. Tym samym chcemy zaprezentować społeczności Krakowa postawę odmienną od prezentowanego dotychczas i naszym zdaniem mocno kontrowersyjnego stanowiska niektórych organizacji, reprezentujących część środowiska wspinaczkowego, popierającego firmę Gerium w jej planach zabudowy terenów Zakrzówka osiedlem bloków wielorodzinnych.

